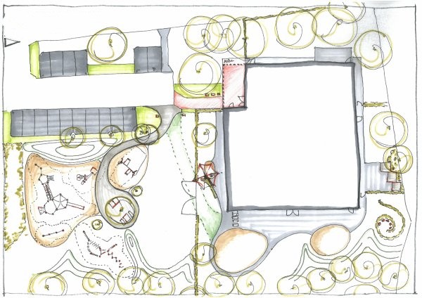
Freianlagenplanung
Wir gestalten Freiräume mit Charakter - von der Vision bis zur Realität. Durch einen sensiblen Umgang mit der Landschaft sowie einem sicheren Gespür für Gestaltung, Technik und Wirtschaftlichkeit entwickeln wir Lösungen, die funktional und ökologisch überzeugen - und zugleich ästhetisch begeistern.
Wir übernehmen sämtliche Leistungen der Freianlagenplanung – von der ersten Idee bis zur fertigen Umsetzung.
Aus ersten Gestaltungsideen entwickeln wir durchdachte Konzepte, die zu einem ausgereiften Entwurf weiterführen. Wir erstellen sämtliche Unterlagen, die für die behördliche Genehmigung erforderlich sind, und begleiten Sie dabei effizient und zuverlässig.
Auf Basis des genehmigten Entwurfs erarbeiten wir detaillierte Ausführungspläne. Wir ermitteln die benötigten Ressourcen und Materialien, erstellen darauf basierende Leistungsverzeichnisse und unterstützen Sie bei der Angebotsprüfung und Auftragsvergabe.
Während der Bauphase übernehmen wir die fachliche Bauüberwachung bis zur Abnahme. Wir koordinieren die beteiligten Gewerke, prüfen Leistungen und Qualität – für eine sorgfältige, wirtschaftliche und termingerechte Umsetzung Ihrer Freianlage.
Unsere Projekte umfassen Außenanlagen öffentlicher Grünflächen und Einrichtungen – etwa Schulen, Kindertagesstätten und Krankenhäuser – ebenso wie Wohnquartiere, Mehrfamilienhäuser und Gewerbeobjekte.
WEITERE LEISTUNGEN DER FREIANLAGENPLANUNG
Konzeptstudien (bzw. Masterpläne)
„Klare Konzepte für starke Freiräume.“
In unseren Konzeptstudien entwickeln wir frühzeitig tragfähige Ideen und Lösungsansätze für Freiräume. Dabei analysieren wir die Rahmenbedingungen und erarbeiten freiraumplanerische Konzepte, die als Grundlage für weitere Planungs- und Entscheidungsprozesse dienen sollen. Unser Anspruch ist es, funktionale Anforderungen mit gestalterischen Qualitäten und nachhaltigen Lösungen zu verbinden. So entstehen klare, nachvollziehbare Konzepte, die den Weg für eine erfolgreiche Umsetzung ebnen.
Mitwirkung im Verfahren
„Von Masterplan bis Genehmigung: Wir bringen Projekte sicher durchs Verfahren.“
Im Rahmen von Genehmigungsprozessen übernehmen wir sowohl die Koordinierung als auch die Erstellung der erforderlichen Fachbeiträge. Dazu zählen unter anderem Fällanträge, Überflutungsnachweise, wasserrechtliche Erlaubnisse oder Genehmigungen, Befreiung aus dem Landschaftsschutz.
Darüber hinaus unterstützen wir bei der Vorbereitung und Durchsetzung von Förderanträgen.
Entwässerungsplanung
„Nachhaltige Entwässerungskonzepte für sicheren Überflutungsschutz und umweltgerechtes Regenwassermanagement.“
Wir entwickeln maßgeschneiderte Konzepte für eine zukunftsfähige und genehmigungsfähige Entwässerungsplanung. Dazu zählen die Erstellung von Entwässerungsgesuchen und die Begleitung im gesamten Genehmigungsprozess. Besonderes Augenmerk legen wir auf den Überflutungsnachweis und Strategien zur Starkregenprävention, um nachhaltige Sicherheit für Bauvorhaben zu gewährleisten.
Darüber hinaus planen wir effiziente Versickerungseinrichtungen wie Entwässerungsmulden, Rigolenfüllkörper etc., die den natürlichen Wasserkreislauf unterstützen und eine umweltgerechte Regenwasserbewirtschaftung ermöglichen. So entstehen nachhaltige Lösungen, die Funktionalität und Gestaltung miteinander verbinden.
Bepflanzungsplanung
„Wir gestalten lebendige Freiräume – harmonisch, standortgerecht und nachhaltig.“
Für jedes Projekt entwickeln wir ein individuelles Bepflanzungskonzept, abgestimmt auf Standort, räumliche Qualitäten und Nutzerbedürfnisse. Dabei wählen wir standortgerechte Pflanzenarten, berücksichtigen ökologische Zusammenhänge und schaffen Konzepte, die ästhetisch ansprechend und pflegeleicht sind.
Von markanten Baumsetzungen über Gehölz- und Staudenpflanzungen bis hin zu Dach- und Fassadenbegrünungen gestalten wir lebendige Freiräume, die funktional überzeugen und die biologische Vielfalt stärken. Unsere langjährige Erfahrung sorgt für harmonische Pflanzkompositionen, die sich optimal an Standort und Architektur anpassen.
Außenanlagen zu Bildungseinrichtungen
„Freiräume des Lernens und Erlebens“
Wir verstehen die Außenanlagen von Schulen und Kitas nicht nur als Pausenräume, sondern als lebendige Freiräume, die Bewegung, soziales Miteinander und sinnliche Erfahrung fördern. Wir schaffen Orte, die Kinder und Jugendliche anregen, Verantwortung für ihre Umwelt zu übernehmen – spielerisch, forschend und gemeinschaftlich.
Durch reduzierte Versiegelung, offene Beläge und die sichtbare Führung des Regenwassers gestalten wir ökologisch wirksame und erlebbare Freiräume. Eine durchgehende, barrierefreie Erschließung verbindet alle Bereiche und ermöglicht klare Orientierung über markante Bäume, Farb- und Materialakzente.
Wir gliedern Bewegungs-, Ruhe- und Lernzonen fein aufeinander abgestimmt, um eigenständiges wie gemeinschaftliches Handeln zu fördern. Pädagogische Elemente wie Schulgärten und Freiluftklassen erweitern den Lernraum nach außen. Leichte Geländeprofilierungen, Sitzstufen und Spielhügel verleihen dem Gelände räumliche Tiefe und laden zum Entdecken ein.
Mit robusten, heimischen Pflanzen schaffen wir lebendige, klimaresiliente Freiräume, in denen Naturerfahrung, Bewegung und Lernen selbstverständlich miteinander verbunden sind.
Spiel- und Sportflächen
„Unsere Spielräume fördern Gemeinschaft – generationenübergreifend und barrierefrei.“
Wir gestalten Spielplätze, die für alle Generationen und Nutzergruppen erlebbar sind. Unsere Planungen berücksichtigen Aspekte der Inklusion, sodass Kinder mit und ohne Einschränkungen gleichermaßen am Spiel teilhaben können. Bewegungsangebote für Jugendliche, Erwachsene und Senioren ergänzen das Konzept und fördern das gemeinschaftliche Miteinander im öffentlichen Raum.
Unter anderem haben wir auch bereits Planung und Bauüberwachung eines Pumptracks ganzheitlich durchgeführt – eine vielseitige Bewegungslandschaft für Fahrräder, Skateboards und weitere Rollsportarten.
Erstellung von Fällanträgen
„Baumfällungen und Schnittmaßnahmen – unkompliziert, zuverlässig und behördensicher.“
Für das Fällen von Bäumen ist häufig eine behördliche Genehmigung erforderlich. Ob ein Antrag nötig ist, richtet sich nach den jeweiligen kommunalen Vorschriften. In vielen Städten und Gemeinden stehen Bäume ab einem Stammumfang von 80 cm (gemessen in 1 m Höhe) unter Schutz und dürfen nur mit Genehmigung gefällt werden.
Auch für Schnittmaßnahmen, etwa an der Baumkrone, kann eine behördliche Erlaubnis notwendig sein.
Damit Ihr Antrag schnell und reibungslos bearbeitet werden kann, müssen in der Regel folgende Unterlagen eingereicht werden:
- Ein Lageplan mit Angaben zu Baumart, Stammumfang und Kronendurchmesser aller Bäume auf dem Grundstück
- Markierung der Bäume, die gefällt oder zurückgeschnitten werden sollen
- Aussagekräftige Fotos der betroffenen Bäume
- Eine Begründung für die gewünschte Maßnahme
Wenn mehrere Bäume entfernt werden sollen, ist zusätzlich ein Wiederbegrünungsplan mit den vorgesehenen Ersatzpflanzungen erforderlich. Wir übernehmen für Sie die komplette Erstellung aller notwendigen Unterlagen und reichen Ihren Antrag direkt bei der zuständigen Behörde ein – schnell, professionell und zuverlässig.
Landschaftspflegerische Ausführungsplanung (LAP)
„Die landschaftspflegerische Ausführungsplanung sorgt dafür, dass naturschutzfachliche Maßnahmen fachgerecht umgesetzt werden – und so aus planerischen Zielen sichtbarer und erlebbarer Naturschutz entsteht“
Die landschaftspflegerische Ausführungsplanung (LAP) bildet die verbindende Brücke zwischen Konzept und Umsetzung. Sie sorgt dafür, dass die in der Planung entwickelten naturschutzfachlichen Maßnahmen fachgerecht realisiert werden – und so aus Zielen und Leitbildern erlebbare Landschaft wird.
Wir verfügen über langjährige Erfahrung im Bereich der landschaftspflegerischen Ausführungsplanung und sind hier in allen Leistungsphasen tätig.
Wir entwickeln detaillierte Ausführungsunterlagen, stimmen uns mit beteiligten Fachplanungen und Behörden ab, erstellen Leistungsverzeichnisse und begleiten die Umsetzung vor Ort. Dabei achten wir auf eine ökologisch und technisch einwandfreie Ausführung, die langfristig wirksam bleibt.
Unserer Tätigkeitschwerpunkte sind hierbei landschaftspflegerische Ausführungsplanungen im Verkehrswegebau und in der Umsetzung von Ausgleichsflächen.
Unser Anspruch: Naturschutz soll nicht nur geplant, sondern sichtbar, funktional und lebendig in die Landschaft integriert werden.
Umweltbaubegleitung (UBB)
„UBB: Umweltgerechte Bauprojekte, sicher umgesetzt.“
Die UBB gewährleistet, dass Bauprojekte umweltverträglich umgesetzt werden und alle gesetzlichen sowie planungsrechtlichen Umweltvorgaben eingehalten werden. Dazu zählen insbesondere die Überwachung und Kontrolle der Maßnahmen, die fachliche Beratung sowie die Koordination und Dokumentation zur Einhaltung der Umweltauflagen.
Die Umweltbaubegleitung wird somit in alle Leistungsphasen einbezogen – von der Planung über Vorbereitung, Bauausführung und Kontrolle bis hin zur Abnahme und abschließenden Dokumentation. Die UBB ist eine beratende Dienstleistung, die bei der Umsetzung eines Bauvorhabens die Einhaltung der Umweltauflagen gewährleistet.
Neben der Umweltbaubegleitung bei Straßenbauprojekten, der Verlegung von Versorgungsleitungen und weiteren Infrastrukturmaßnahmen betreuen wir auch komplexe und sensible Vorhaben – beispielsweise die Umgestaltung historischer Parkanlagen mit wertvollem Baumbestand und dem Vorkommen geschützter Tierarten.
Unsere fachkundige Begleitung erstreckt sich dabei teilweise über mehrere Jahre und erfordert umfassende ökologische Kenntnisse sowie langjährige Erfahrung im Umgang mit den vielfältigen Biotopfaktoren eines solchen Projekts.
Baumschutzfachliche Baubegleitung (BaumBB)
„Nachhaltiger Baumschutz von Planung bis Abschluss.“
Die BaumBB kann entweder eigenständig oder als Bestandteil der Umweltbaubegleitung (UBB) eingesetzt werden. Sie begleitet das Bauvorhaben von der Planung bis zum Abschluss und erbringt Leistungen zum vorsorgenden sowie baubegleitenden Baumschutz. Dazu gehört die Erstellung eines Baumschutzkonzepts, die Betreuung und Überwachung seiner Umsetzung sowie die umfassende Dokumentation aller Maßnahmen. Bereits in der Planungsphase werden Schutz- und Schadensminimierungsmaßnahmen für Bäume vorgeschlagen, die während der Bauausführung umgesetzt und kontrolliert werden.
In allen Leistungsphasen nimmt die BaumBB zudem eine beratende Funktion für alle Projektbeteiligten wahr und stellt den nachhaltigen Erhalt sowie den fachgerechten Umgang mit Bäumen im Bauprozess sicher.
Visuelle Baumkontrolle
„Sichere Bäume durch professionelle Kontrolle.“
Zur Überprüfung von Bäumen auf Verkehrssicherheit, führen wir Baumkontrollen in Form von Sichtkontrollen durch fachlich qualifizierte Inaugenscheinnahme vom Boden aus durch.
Bei der Kontrolle liegt der Schwerpunkt auf Gesundheit, Stabilität und Sicherheit der Bäume. Dabei werden Wurzelbereich, Stamm und Krone sorgfältig begutachtet, um Schäden frühzeitig zu erkennen und gegebenenfalls geeignete baumpflegerische Maßnahmen festzulegen, die den langfristigen Erhalt der Bäume sichern.
Darüber hinaus übernehmen wir auf Wunsch auch die Ausschreibung und Koordination der erforderlichen Pflegemaßnahmen.
Baumwertermittlung
„Bäume sind prägende Elemente unserer Umwelt – ihre Bewertung verlangt Respekt, Fachwissen und ein Verständnis für ihren ökologischen und gestalterischen Wert.“
Wir ermitteln den Wert von Bäumen nach der rechtlich anerkannten „Methode Koch“. Dabei betrachten wir jeden Baum im Zusammenhang mit seinem Umfeld: Art, Standort, Zustand und Entwicklungspotenzial.
Gerade alte Bäume können durchaus den Wert eines Grundstücks erheblich steigern, da sie im Zusammenspiel mit ihrem Standort zu betrachten sind.
Unsere Baumwertermittlungen schaffen Klarheit – als Grundlage für Planungen, Schadensregulierungen oder Ersatzpflanzungen. So leisten sie einen Beitrag zum bewussten, verantwortungsvollen Umgang mit dem wertvollen Grün in unserer gebauten Umwelt.













































